This property is no longer available.
Sold at Auction
0
2

Features

  • FOR SALE BY ON-LINE AUCTION
  • A substantial former Chapel
  • Situated in a lovely rural location
  • Car Park and Paddock included in the sale
  • Huge further potential (subject to PP)

Important Information

  • Council Tax Exempt
  • Tenure: Freehold

Property Details

FOR SALE BY ON-LINE AUCTION ON 25th OCTOBER 2023. Viewings to commence Wednesday 6th September 2023 by appointment.


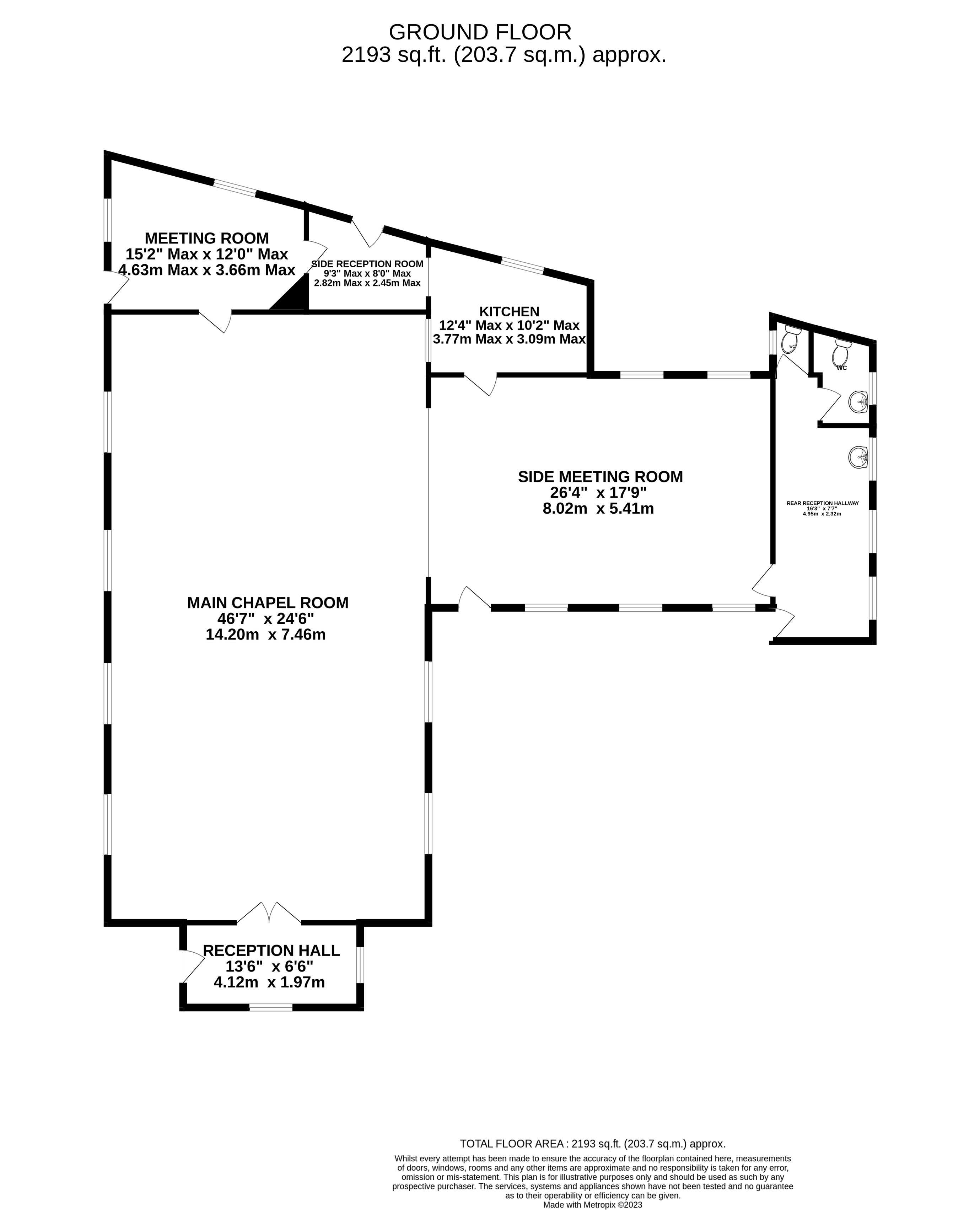
This most attractive Chapel was originally constructed in 1825 with later extensions and until recently has been a place of worship. It is situated in a lovely and sought after rural location yet is convenient for a wide range of local centres being close to Chelford which is served by its own railway station and also having Knutsford, Wilmslow and Alderley Edge nearby.


The chapel itself is constructed of brick under a slated roof and would benefit from modernisation, however, subject to planning permission does provide huge potential to be converted for other uses. Included within the sale is the car park situated just down the road from the chapel itself and beyond this is an adjoining paddock. The total area of the car park and paddock extends to just over half an acre.


Overage - overage is to be imposed for a term of 25 years at a rate of 30% of any uplift in value above the sale price of the property increased in line with any increase in the RPI as a result of the grant of any planning permission for development of the property. Further details are available within the contract pack.


Property Information - Tenure - details should be confirmed from the title deeds within the contract pack. Main electricity and water are connected however, purchasers are advised that none of the service, fixtures or fittings have been tested. Prospective buyers are advised to obtain their own reports prior to purchase. Council Tax Exempt. EPC - Exempt.

Buyers Premium - a buyers premium is payable to the auctioneers upon the fall of the gavel and is 1.2% inclusive of VAT of the hammer price.

Vendors Solicitors - Joanne Russell, Sintons Solictors, Barrack Road, Newcastle Upon Tyne, NE4 6DB.

Completion - completion is to take place 28 days after the date of the auction or earlier by mutual agreement.

Viewings - By appointment through the agents Knutsford Office (01565 656544). What3words location - traded.mixture.motive Postcode - SK11 9BG.

Find the perfect property. Sign up for Property Alerts
Copyright Meller Braggins Estate Agents 2026.
Website Design Property Webmasters