Sold at Auction
4
3

Features

  • TO BE SOLD UNDER AUCTION TERMS
  • SET IN APPROXIMATELY 0.3 ACRES
  • STUNNING BRICK BUILT STABLE BLOCK
  • SUPERB DEVELOPEMENT OPPORTUNITY
  • APPROACHED VIA A PRIVATE DRIVE
  • PLANNING APPLICATION REFERENCE: 053005

Important Information

  • Tenure: Freehold

Property Details

TO BE SOLD BY ONLINE AUCTION ON 22nd OCTOBER 2025 UNLESS SOLD PRIOR UNDER AUCTION TERMS.

 

The Stables, Coach House, Kinnerton Lane, Higher Kinnerton Chester, CH4 9BE


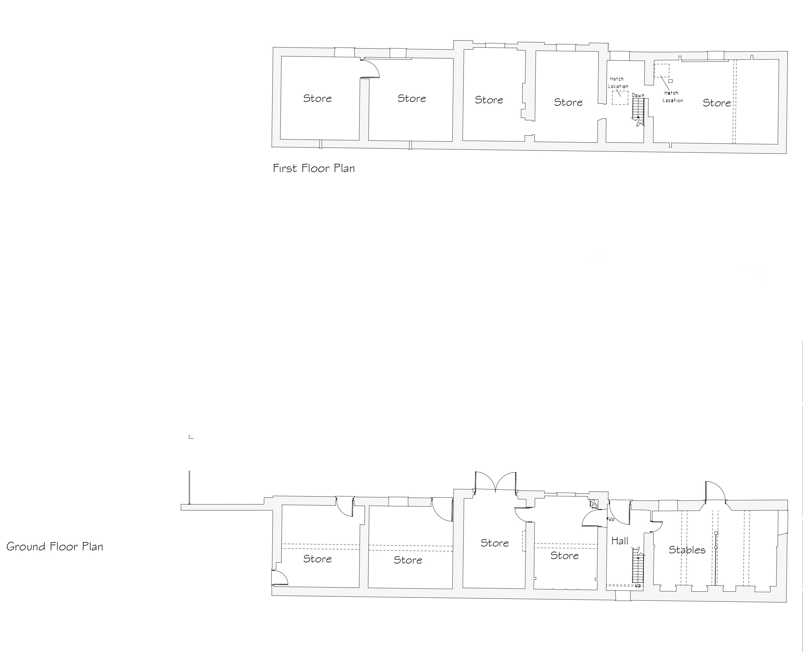
A rare and exciting opportunity to acquire a stone built stable block, set in approximately 0.3 acres of land and approached via a private drive. Planning permission was previously granted for conversion to double storey residential dwelling. Planning reference 053005. Consisting of three reception rooms, kitchen and four bedrooms one with en-suite and dressing room.


Set within a stunning rural location on the prestigious Kinnerton Lodge Estate, the Stables offers a rare opportunity to acquire a characterful period building with excellent development potential Formerly part of a grand Grade II Listed Coach House complex, The Stables enjoy a picturesque and tranquil setting, surrounded by beautiful woodland, open paddocks, and landscaped grounds, nestled within the estate grounds, the property offers superb scope for conversion. Retaining original architectural features and rustic charm, The Stables would lend themselves well to a sympathetic restoration and repurposing.

 

Located just minutes from the A55, the site combines idyllic countryside living with exceptional transport links. Chester is only 7 miles away, with Liverpool, Wrexham, and Manchester all easily accessible by road. The nearby village of Higher Kinnerton offers day-to-day amenities, a well-regarded primary school, and welcoming local pubs.

 

This is an exceptional chance to secure a unique building in an exclusive setting, with generous outdoor space and a wealth of potential.

Find the perfect property. Sign up for Property Alerts
Copyright Meller Braggins Estate Agents 2026.
Website Design Property Webmasters