This property is no longer available.
SSTC
4
4

Features

  • A stunning Grade II Listed House
  • Situated in private and secluded grounds
  • One of Knutsfords hidden Gems!
  • Ample parking and Garage
  • EPC - exempt

Important Information

  • Council Tax Band: G
  • Tenure: Freehold

Property Details

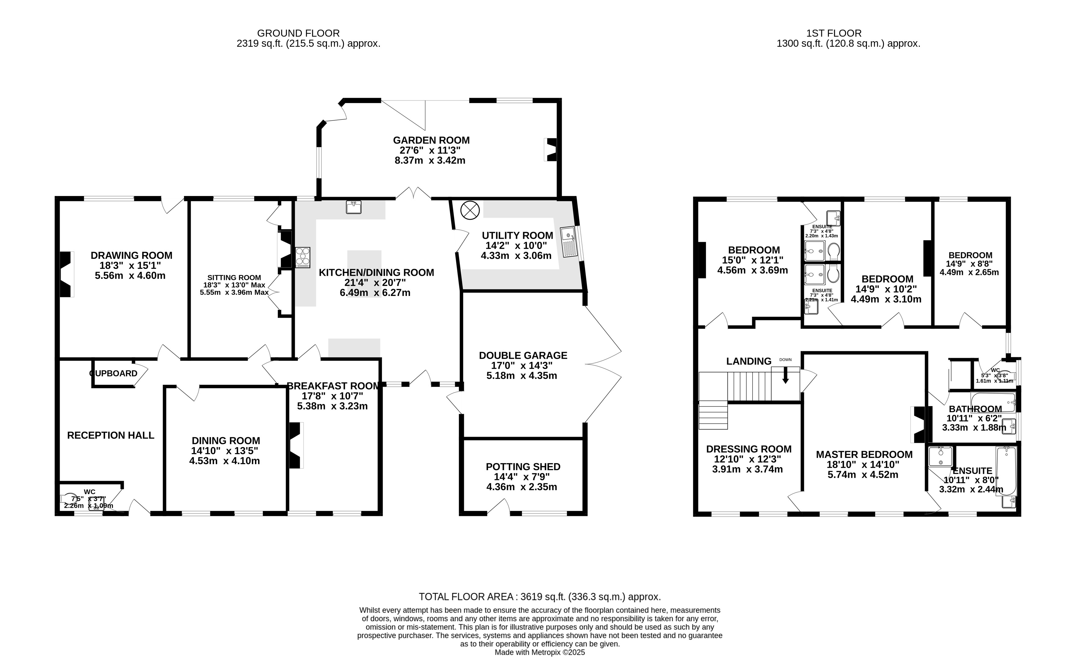
West Court is the west wing of the Old Court House and is believed in part to date back to the 16th century when it was a farmhouse. Until 1928, West Court and the Old Court House were part of the Booths Hall Estate which has been the family seat of the Pennington-Legh's for over 400 years.


Built of brick under a slated roof, the property offers well proportioned family sized accommodation which is presented in excellent order throughout and situated in secluded grounds within a fine residential locality. There are many attractive period features and the property is Grade II listed as being of architectural importance. Of particular note is the fabulous Garden Room which was completed in 2007 and is constructed of exposed old stock brick also having a vaulted ceiling with reclaimed oak beams and trusses. This room enjoys wonderful views over the gardens which are further enhanced by large bi-fold doors making the most of the south westerly aspect.


In addition, the Kitchen was substantially extended in 2018 and fitted to the highest of standards with a bespoke hand painted kitchen with range cooker, granite working surfaces and Belfast style sink with Quooker boiling water tap. This gives a fabulous central hub to the house and excellent day to day living space with direct access to the Garden Room and Gardens beyond.


The property is approached over a sweeping driveway leading from Chelford Road and is set well back from the road giving a high degree of privacy and there is ample parking for several vehicles together with a double Garage. The house itself stands within beautifully landscaped grounds of around 0.75 of an acre and these are mainly laid to lawn with well stocked borders and mature trees with the rear garden being partly walled to include a paved patio area.


Whilst strictly speaking the house is attached to the courthouse, it has the feel of a detached property being orientated away from the neighbouring property.


Property Information - Services - all main services are connected. Gas fired central heating is installed. We must advise prospective purchasers that none of the fixture or fittings have been tested. Buyers are advised to obtain their own independent reports prior to purchase. Council Tax Band G (Cheshire East Council). Tenure - we are informed is Freehold. EPC - exempt.

Find the perfect property. Sign up for Property Alerts
Copyright Meller Braggins Estate Agents 2026.
Website Design Property Webmasters